

咨詢熱線:18151922896
聯系電話:025-84312185
傳真:025-84312185
網址:
郵箱:juhangvsr@163.com
地址:南京市光華路156號
隨著社會的進步和經濟的發展,橋梁建設得到了飛速的發展,尤其是大跨徑鋼箱梁。現在鋼箱梁的制造過程均已采用焊接工藝,現場連接也由高強度螺栓轉向栓焊或全焊連接。鋼箱梁加勁板在焊接和冷卻過程中會產生焊接殘余應力和殘余變形,而焊接應力較高的部位將達到鋼材的屈服強度而發生塑性變形。
因此,對于整體階段焊接殘余應力的研究尤為重要。本文主要是以某橋梁為例,采用盲孔法對鋼箱梁進行殘余應力檢測,得出鋼箱梁焊接殘余應力的分布規律及特點,為后續施工及設計提供技術參考。
橋梁結構介紹
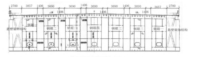
橋梁主橋采用57.5m+85m+57.5m三跨跨越海河,橋跨總長200m,主跨85m。
主橋由橫向7個鋼箱梁組成,橫向對稱布置,每個鋼箱梁寬度3.452m,鋼箱梁之間間距1.644m。鋼箱梁頂面與道路縱斷線形一致,底面為曲線線形。兩個鋼箱梁之間采用上下兩個橫梁進行連接。鋼箱梁內部設大橫隔板和小橫隔板,其標準間距為2.5m。鋼箱梁之間橫梁布置位置對應大、小橫隔板。
鋼箱梁頂板設置U肋,底板設置T肋,腹板設置豎向、橫向加勁肋。
主橋鋼結構全部采用焊接,其中板厚變化的位置需進行板厚過渡處理,過渡段應滿足不小于1:8,不大于1:6,并且板厚過渡區域在薄板范圍內。
鋼箱梁示意圖
殘余應力檢測儀器
測試儀器為聚航科技生產的JHMK殘余應力測試系統,由JHZK殘余應力鉆孔裝置和JHYC靜態應變儀組合而成。在軟件進行設置后,會自動實時計算殘余應力值,顯示殘余應力釋放曲線,生成殘余應力報告。
殘余應力檢測貼片位置選擇
根據橋梁拼裝和焊接的步驟可知,該橋在頂板上有縱向和橫向兩種焊縫。因此,焊接殘余應變測點位置選擇其中同一箱梁的相交橫焊縫上。測點布置具體如下:橫橋向布置在4#-5#跨箱梁二第一道橫向焊縫位置處;橫橋向由于主梁為梁橫向布置七片箱梁和六片箱間橫隔板構成,為對稱結構,因此選擇箱梁二三間箱梁二與箱間橫隔板的焊縫。每個箱梁的殘余應力測點布置為:橫向焊縫殘余應力測點布置為距離焊縫邊緣0.02m,間距0.4m的測點10個,在橫向焊縫中間沿垂線方向布置間距為0.01m的測點2個,橫向焊縫殘余應力測點共12個點;縱向焊縫殘余應力測點布置距離焊縫邊緣0.02m,間距0.6m的測點4個,在第三個測點位置處,沿縱向焊縫垂直方向布置間距為0.01m的測點2個,縱向焊縫殘余應力測點共6個點,總測點共16個。
焊接殘余應力檢測結果
通過現場對橋梁進行焊接殘余應力測試,可以得到測試部位殘余應力數值,以及箱梁二焊縫殘余應力分布圖。“+”表示拉應力,“-”表示壓應力,σmax為測點處主拉應力,σmin為測點處主壓應力,θ為主拉應力σmax與焊縫方向的夾角。
由測得的數據和殘余應力分布曲線圖可知,箱梁二頂板橫向焊縫測區的殘余應力峰值為199.97MPa,為材料屈服強度的57.96%;箱梁二頂板縱向焊縫測區的殘余應力峰值為-157.94MPa,為材料屈服強度的45.78%。從整體來看,箱梁二梁端段頂板焊縫測區殘余應力整體水平在材料屈服強度的25%左右,焊縫附近的殘余應力大小沿切線方向和垂線方向分布均為非線性。
總結
采用盲孔法對鋼箱梁頂板上焊縫處殘余應力進行了測試,分析測試結果后得到了各測點主應力。
1. 焊縫附近的應力分布不均勻,沿焊縫方向既有拉應力又有壓應力,且拉壓應力交替出現。
2. 橋梁跨中箱梁頂板與橫向1/3處箱梁頂板焊接殘余應力分布類似,跨中焊接殘余應力整體水平要高于1/3處。
3. 橋梁箱梁頂板橫向焊縫處殘余應力分布呈中間大,兩端小的趨勢。
4. 焊縫附近鋼板的殘余應力與距焊縫距離無線形關系。